



Indicador Digital LD2052 ideal para conversões de balanças rodoviárias, balanças ferroviárias. Sistema de pesagem digital, com 10.000 divisões, teclado alfa numérico, saída serial RS 232 e paralela. Permite visualizar a data, hora, número de pesagem e o registro dessas informações no seu computador.
Os indicador digital LD 2052 são sistemas eletrônicos micro processados, com display duplo, um display de LED na parte superior, com seis dígitos e um display de cristal líquido (LCD), com duas linhas e 16 colunas, 10.000 divisões configuráveis, de baixo custo, com estrutura em plastico ABS, ideal para balanças tipo plataforma, balanças rodoviárias, sistemas de pesagem industrial , pesagem de veículos, controle de pátio com armazenamento de dados em banco de dados, operando com células de medição digitais, em redes, em sistemas supervisórios ou sistemas comerciais, via RS232 ou Ethernet, onde pode ser acessado por diversos protocolos, podendo também ser interconectado a impressoras de etiquetas, matricial ou a um computador pessoal, voltados as mais diferentes aplicações de pesagem.
O indicador possui ainda uma porta para conexão com display remoto, porta de interconexão com impressora e teclado, similar ao padrão PS2. Também conta com diversos acessórios e funções de software que auxiliam nos mais diversos tipos de aplicações.

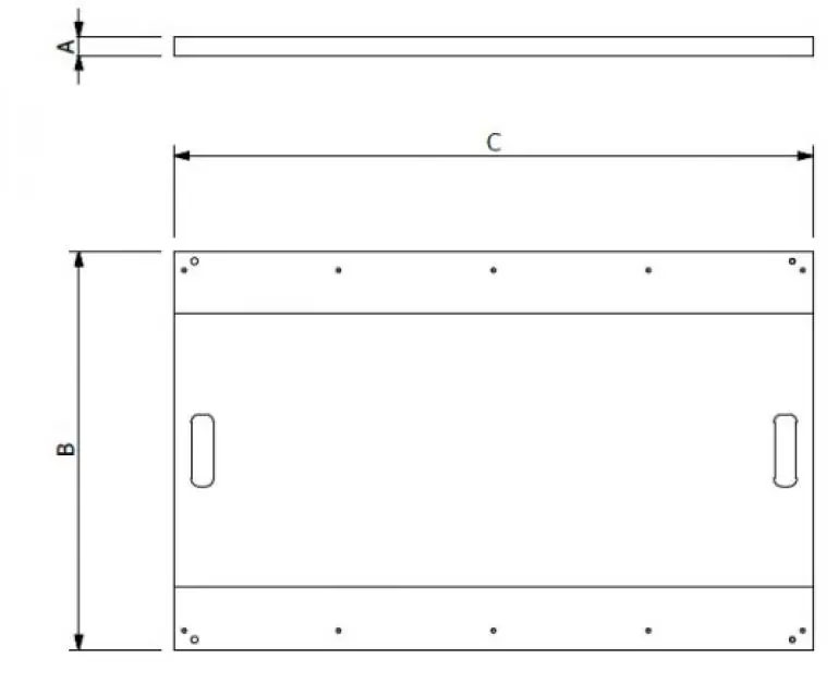
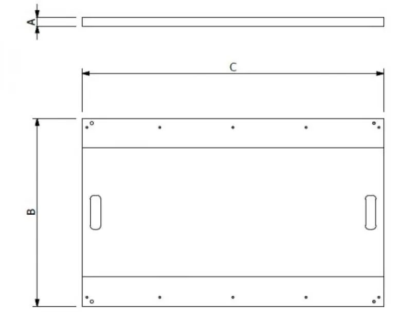
| Dimensões da área útil (mm) | A (mm) |
B (mm) |
C (mm) |
Peso (kg) +/- 5kg |
|---|---|---|---|---|
| 500x1000 | 40 | 500 | 1000 | 34 |
Outras Dimensões e capacidades sob consulta.